● 不占空間,更加美觀
● 全套德國威能產品,系統更穩(wěn)定
● 在用客戶20000?,最長使用時間已達16年
● 設計、施工、售后經驗豐富,可靠
">
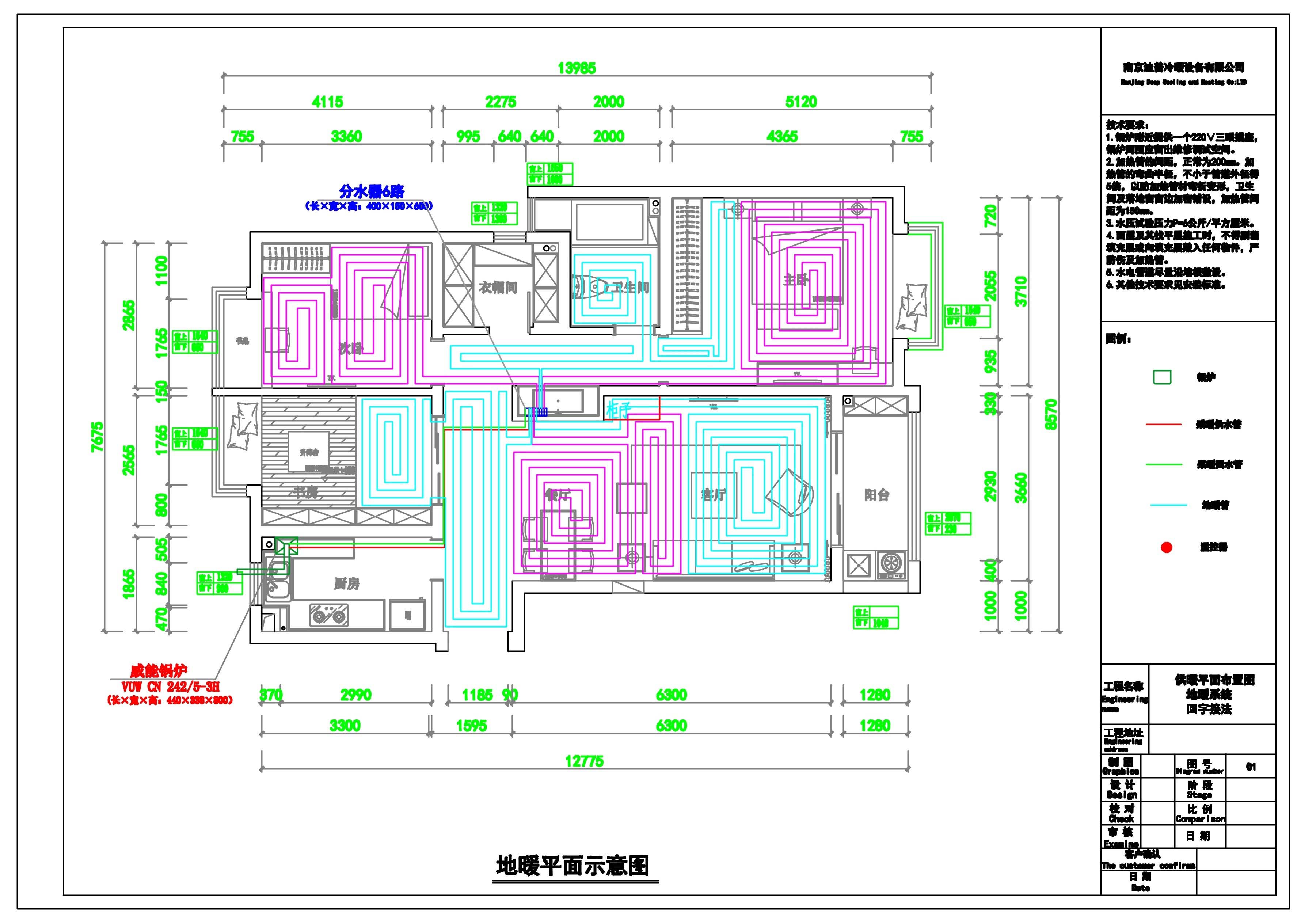
| 地暖全套威能系統配置方案 | |||
| 建筑面積 | 122㎡ | 采暖面積 | 63㎡ |
| 品牌 | 名稱 | 型號 | 產地 |
| 威能 | 壁掛爐 | VUW242/5-3 | 德國 |
| 威能 | 分集水器 | 6路 | 中國 |
| 威能 | 地暖盤管 | 阻氧PERT管 | 德國 |
| 威能 | 鋁塑管 | 多層復合鋁塑管 | 德國 |
| 迪普定制 | 保溫板 | 2.5cm厚白晶板 | 中國 |
| 威能 | 溫控面板 | 液晶面板 | 中國 |
| 迪普 | 人工費 | ||
| 迪普 | 施工輔材 | ||


系統推薦配置




| 地暖全套威能系統配置方案 | |||
| 建筑面積 | 122㎡ | 采暖面積 | 63㎡ |
| 品牌 | 名稱 | 型號 | 產地 |
| 威能 | 壁掛爐 | VUW242/5-3 | 德國 |
| 威能 | 分集水器 | 6路 | 中國 |
| 威能 | 地暖盤管 | 阻氧PERT管 | 德國 |
| 威能 | 鋁塑管 | 多層復合鋁塑管 | 德國 |
| 迪普定制 | 保溫板 | 2.5cm厚白晶板 | 中國 |
| 威能 | 溫控面板 | 液晶面板 | 中國 |
| 迪普 | 人工費 | ||
| 迪普 | 施工輔材 | ||


系統推薦配置




咨詢熱線:025-84717095
總部地址:南京南站北廣場綠地之窗C3棟1107-1114
來訪路線:乘坐地鐵1、3號線到南京南站下車,乘坐129路;190路;19路;719路;791路;84路;d12路到玉盤西街站下車